Начало
В строеж
Верде
Алдира
Елея – Б
Рубин
Калиста
Елея – А
Есперанса
Завършени
Еделвайс
Начало
/
Рубин
/
Етаж 2
/
Апартамент 1
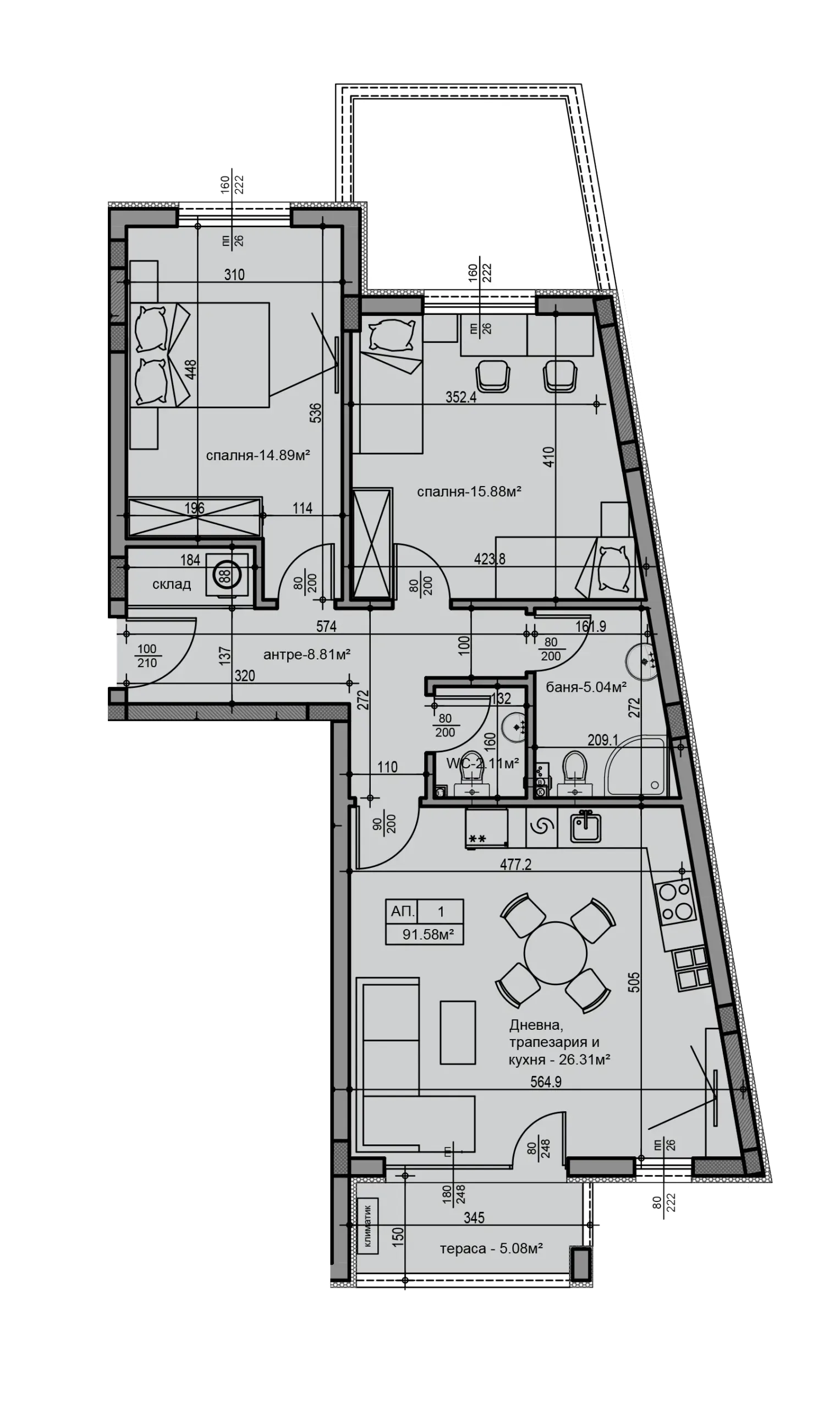
Апартамент 1
Застроена площ
91,58 ㎡
С общи части
103,82 ㎡
Тип
3-стаен апартамент
Изложение
Северозапад, Югоизток
Q
Продаден