Начало
В строеж
Верде
Алдира
Елея – Б
Рубин
Калиста
Елея – А
Есперанса
Завършени
Еделвайс
Начало
/
Калиста
/
Етаж 5
/
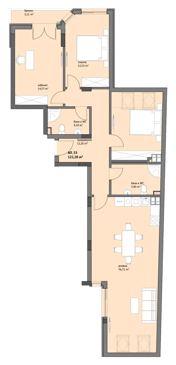
Апартамент 33
Апартамент 33
Застроена площ
122,28 ㎡
С общи части
143,58 ㎡
Склад №30
5,25 ㎡
Тип
4-стаен апартамент
Изложение
Запад, Северозапад, Югоизток, Югозапад
Q
Продаден