Начало
В строеж
Верде
Алдира
Елея – Б
Рубин
Калиста
Елея – А
Есперанса
Завършени
Еделвайс
Начало
/
Калиста
/
Етаж 3
/
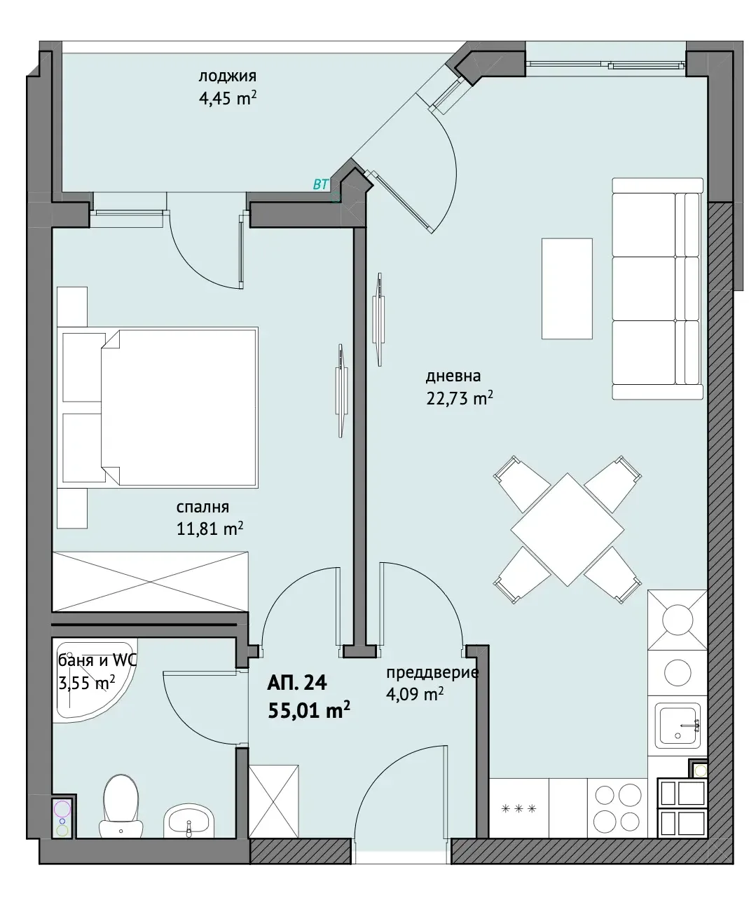
Апартамент 24
Апартамент 24
Застроена площ
55,01 ㎡
С общи части
64,59 ㎡
Склад №21
1,60 ㎡
Тип
2-стаен апартамент
Изложение
Запад, Северозапад
Q
Продаден