Начало
В строеж
Верде
Алдира
Елея – Б
Рубин
Калиста
Елея – А
Есперанса
Завършени
Еделвайс
Начало
/
Калиста
/
Етаж 3
/
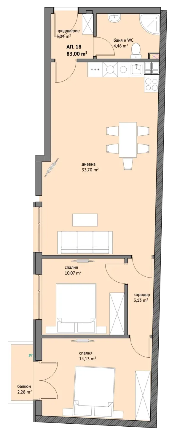
Апартамент 18
Апартамент 18
Застроена площ
83,00 ㎡
С общи части
97,45 ㎡
Склад №13
1,93 ㎡
Тип
3-стаен апартамент
Изложение
Югозапад
Q
Продаден