Начало
В строеж
Верде
Алдира
Елея – Б
Рубин
Калиста
Елея – А
Есперанса
Завършени
Еделвайс
Начало
/
Калиста
/
Етаж 1
/
Апартамент 7
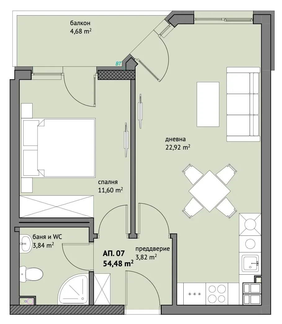
Апартамент 7
Застроена площ
54,48 ㎡
С общи части
63,97 ㎡
Склад №45
1,71 ㎡
Тип
2-стаен апартамент
Изложение
Запад, Северозапад
Q
Продаден