Начало
В строеж
Верде
Алдира
Елея – Б
Рубин
Калиста
Елея – А
Есперанса
Завършени
Еделвайс
Начало
/
Калиста
/
Етаж 1
/
Апартамент 4
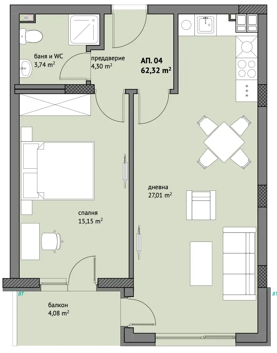
Апартамент 4
Застроена площ
62,32 ㎡
С общи части
73,17 ㎡
Склад №36
1,84 ㎡
Тип
2-стаен апартамент
Изложение
Югоизток, Югозапад
Q
Продаден