Начало
В строеж
Верде
Алдира
Елея – Б
Рубин
Калиста
Елея – А
Есперанса
Завършени
Еделвайс
Начало
/
Есперанса
/
Етаж 6
/
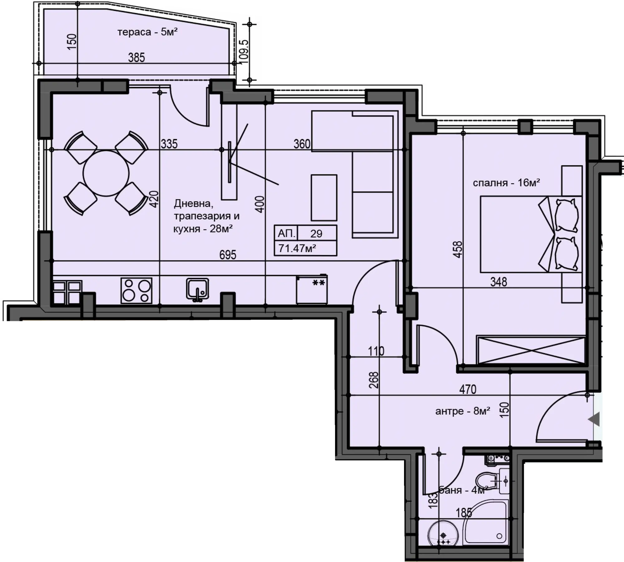
Апартамент 29
Апартамент 29
Застроена площ
71,47
С общи части
79,24
Тип
2-стаен апартамент
Изложение
Североизток, Северозапад
Q
Продаден