Начало / Есперанса / Етаж 2 / Апартамент 8

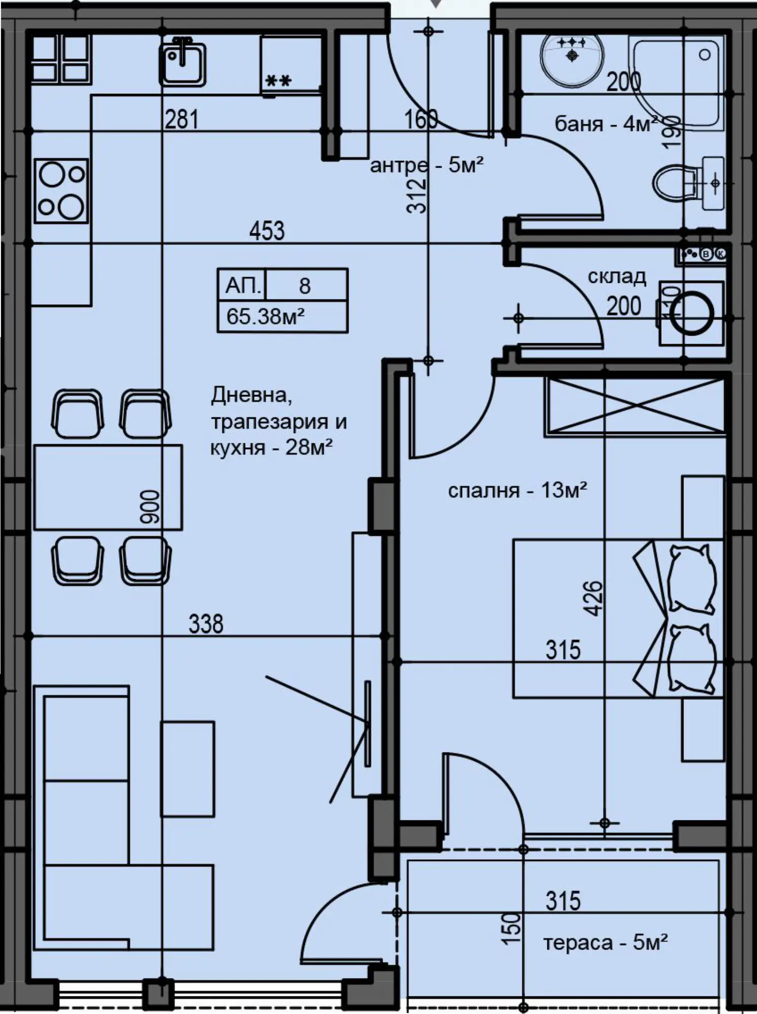
Апартамент 8

Застроена площ

65,38

С общи части

73,24

Тип

2-стаен апартамент

Изложение

Югозапад
Q

Продаден