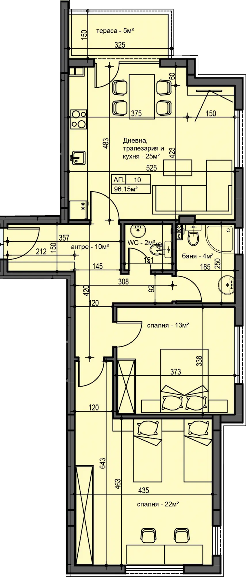
Начало / Есперанса / Етаж 2 / Апартамент 10

Апартамент 10

Застроена площ

96,15

С общи части

107,94

Тип

3-стаен апартамент

Изложение

Североизток, Югоизток, Югозапад
Q

Продаден