Начало
В строеж
Верде
Алдира
Елея – Б
Рубин
Калиста
Елея – А
Есперанса
Завършени
Еделвайс
Начало
/
Есперанса
/
Етаж 1
/
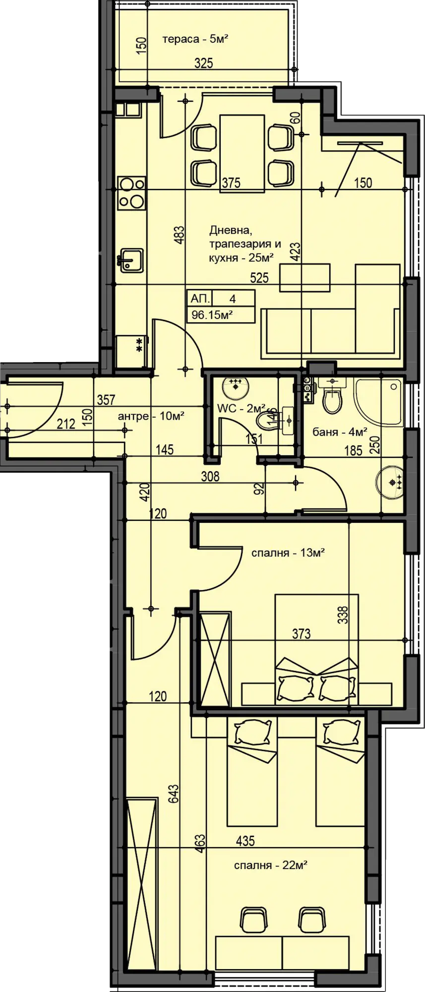
Апартамент 4
Апартамент 4
Застроена площ
96,15
С общи части
107,94
Тип
3-стаен апартамент
Изложение
Североизток, Югоизток, Югозапад
Q
Продаден