Начало
В строеж
Верде
Алдира
Елея – Б
Рубин
Калиста
Елея – А
Есперанса
Завършени
Еделвайс
Начало
/
Есперанса
/
Етаж 1
/
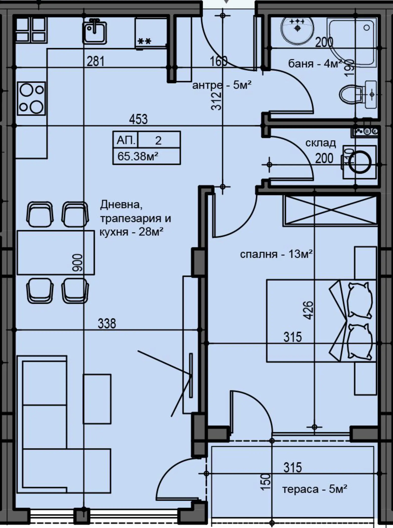
Апартамент 2
Апартамент 2
Застроена площ
65,38
С общи части
73,24
Тип
2-стаен апартамент
Изложение
Югозапад
Q
Продаден