Начало / Алдира / Партер / Апартамент 204

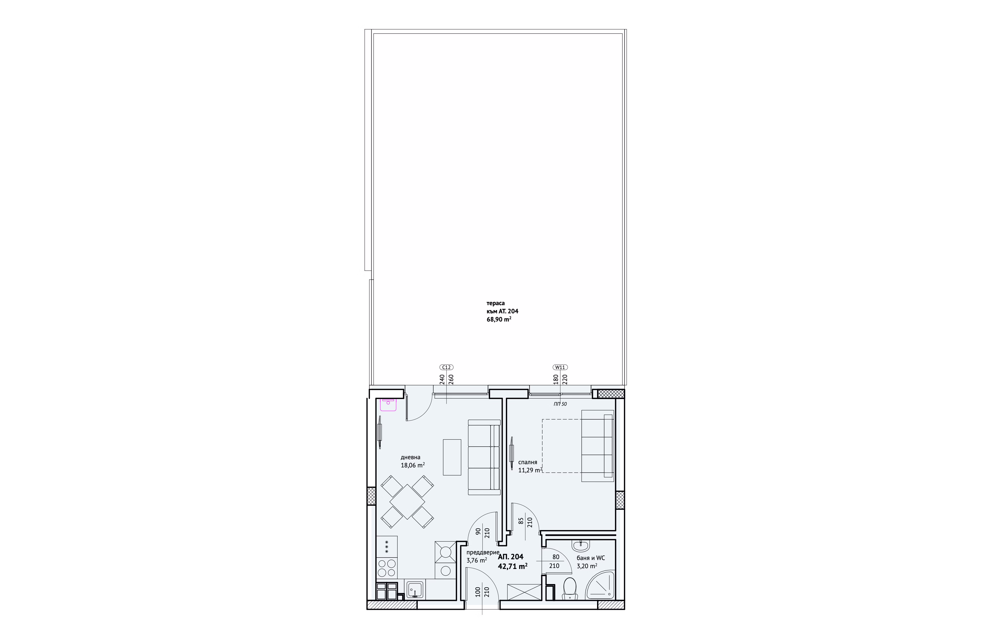
Апартамент 204

Застроена площ

42,71 ㎡

С общи части

50,94 ㎡

Склад №107

1,27 ㎡

Тип

2-стаен апартамент

Изложение

Североизток
Q

Продаден