Начало
В строеж
Верде
Алдира
Елея – Б
Рубин
Калиста
Елея – А
Есперанса
Завършени
Еделвайс
Начало
/
Алдира
/
Етаж 3
/
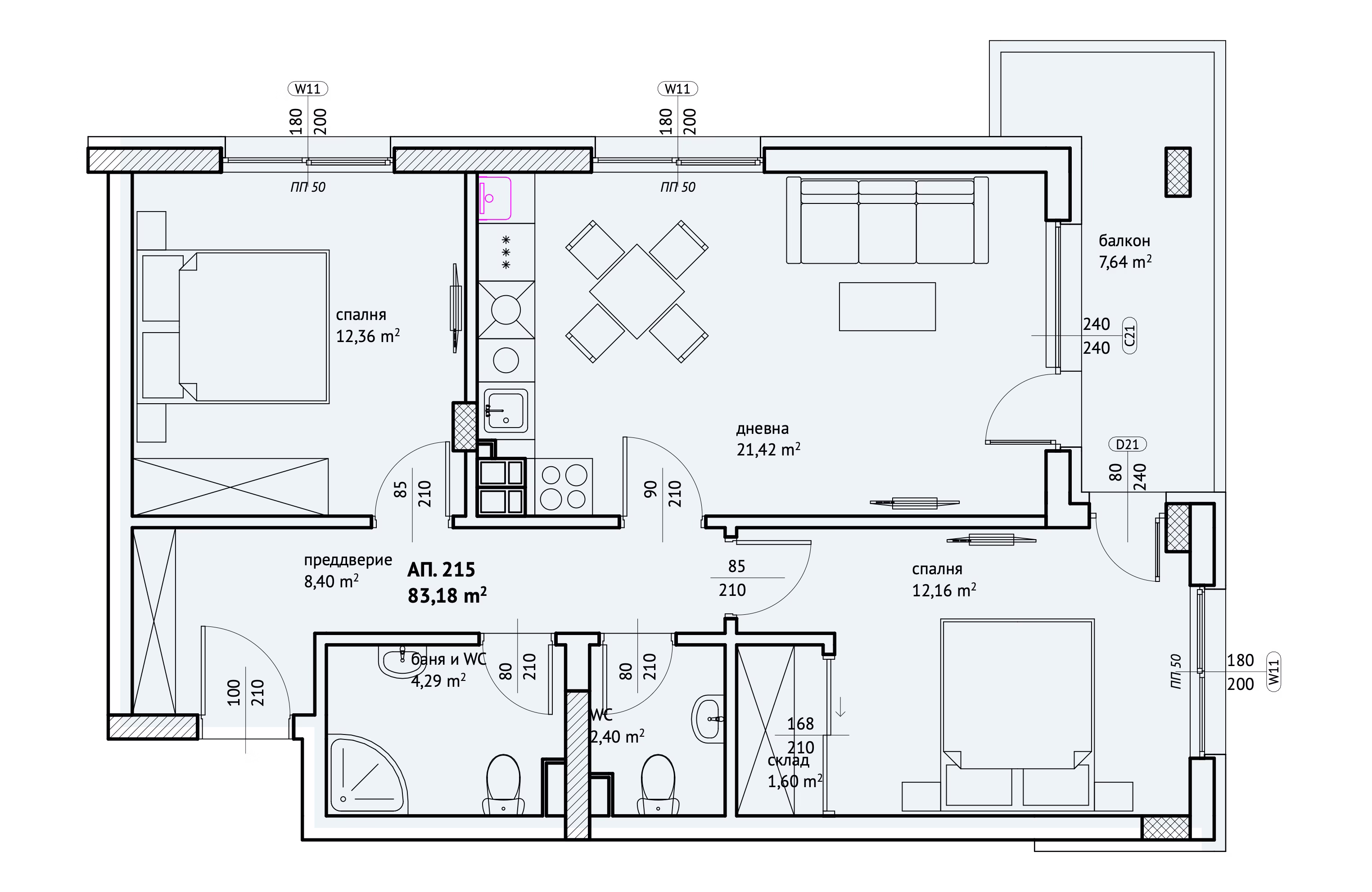
Апартамент 215
Апартамент 215
Застроена площ
83,18 ㎡
С общи части
99,21 ㎡
Тип
3-стаен апартамент
Изложение
Североизток, Югоизток
Q
Продаден